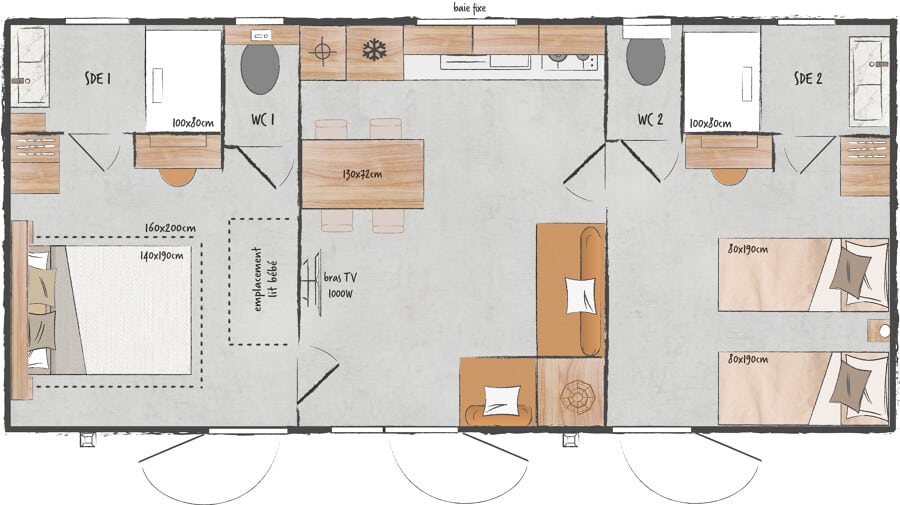
Le O’Hara 865 redéfinit le confort en mobil-home avec son aménagement modulable et ses deux salles d’eau privatives. Véritable référence haut de gamme, il combine design, luminosité et indépendance pour offrir une expérience de vie unique, en famille comme entre amis.
Sa cuisine en enfilade ultra-lumineuse, sublimée par une grande baie horizontale, relie naturellement l’espace repas au salon. Le canapé d’angle contemporain, les finishes bois clair et les lignes épurées créent une ambiance chic et reposante, où chaque détail compte.
Grâce à son pack hôtelier en option, le modèle peut se transformer en deux suites totalement indépendantes, chacune avec sa salle d’eau Easy Clean et ses WC privatifs. Une configuration idéale pour les familles souhaitant plus d’intimité ou pour un usage locatif haut de gamme.
La chambre parentale se distingue par son espace dressing et sa coiffeuse-bureau avec miroir, tandis que la chambre enfants ou invités dispose d’un aménagement équivalent, pour un confort équilibré et fonctionnel.
Les salles d’eau Easy Clean allient élégance et praticité : vasque effet marbre, miroir rond XXL, douche extraplate 100 x 80 cm, et colonne de douche “Elle & Lui” ajustable.
✅ Les + du modèle :
2 chambres et 2 salles d’eau privatives
Option pack hôtelier : 2 suites indépendantes
Cuisine ultra-lumineuse avec grande baie horizontale
Coiffeuse/bureau dans chaque chambre
Ambiance haut de gamme et moderne
Isolation renforcée (plancher 100 mm / toit 200 mm)
Fabrication française – Collection O’Hara
Cuisine
Meubles de rangement hauts grande contenance
Hotte encastrée
Évier résine avec mitigeur design
Plaque de cuisson blanche 4 feux gaz
Meubles bas équipés de poignées en bois
Tiroir avec coulisses à sortie totale
Colonne réfrigérateur-congélateur
Colonne technique accueillant le chauffe-eau
Salon / séjour
Table rectangulaire 130×72 cm avec ses 4 chaises empilables in & out
Canapé d’angle sur pieds avec table basse intégrée
Suspension lumineuse
Prise de courant avec port USB
Bras TV
De série
Ensemble gouttière/descente rond et métallisé
Convecteur 1 000 W
Câblage TV
Ventilation haute et basse
Chauffe-eau hydropower
Disjoncteur général
Matelas mousse HR35 kg/m3, labellisé OEKO TEX
Détecteur de fumée garanti 10 ans
Meubles cuisine sur pieds avec plinthes PVC
Lino grand passage sans phtalates
Réfrigérateur congélateur
Éclairage 100 % LED
Robinetterie haut de gamme certifiée ACS, mitigeurs cartouche C3 à position centrale froide et limiteur de débit 7l/min (évier et vasque)
Isolation renforcée plancher 100mm et toit 200mm – laine de verre GR40
WC suspendus suite parentale
Chambre parents
Rideau occultant toute largeur
Tête de lit avec étagères, liseuses et prises intégrées
Chevets à poser
Grand placard penderie
Coiffeuse/bureau avec prise, miroir et siège d’appoint
Sommier 140×190 cm, 18 lattes
Salle d’eau privative et son WC suspendu indépendant
Emplacement lit bébé
Chambre enfants/invités
Porte-fenêtre occultée par un rideau
Tête de lit
Sommiers 80×190 cm, 18 lattes
Chevet à poser et liseuse
Grand placard penderie
Coiffeuse/bureau avec prise, miroir et siège d’appoint
Salle d’eau privative
WC indépendant
Salles d’eau easy clean
Vasque effet marbre, sur meuble métal laqué gris, surmonté d’un miroir rond XXL
Douche sans coiffe 100×80 cm avec receveur extra-plat et porte vitrée grande hauteur
Colonne de rangement suspendue et luminaire en applique côté chambre parents
Colonne de douche «Elle & Lui» dans la suite parentale
Barre de douche ajustable dans la salle d’eau enfants/invités
Notre site utilise des cookies afin de collecter des données statistiques et marketing. Nos partenaires recueilleront ces données et utiliseront ces cookies pour vous proposer des annonces personnalisées et mesurer leurs performances. Vous pouvez révoquer votre consentement à tout moment.
Fonctionnel
Toujours activé
Le stockage ou l’accès technique est strictement nécessaire dans la finalité d’intérêt légitime de permettre l’utilisation d’un service spécifique explicitement demandé par l’abonné ou l’utilisateur, ou dans le seul but d’effectuer la transmission d’une communication sur un réseau de communications électroniques.
Préférences
Le stockage ou l’accès technique est nécessaire dans la finalité d’intérêt légitime de stocker des préférences qui ne sont pas demandées par l’abonné ou l’utilisateur.
Statistiques
Le stockage ou l’accès technique qui est utilisé exclusivement à des fins statistiques.Le stockage ou l’accès technique qui est utilisé exclusivement dans des finalités statistiques anonymes. En l’absence d’une assignation à comparaître, d’une conformité volontaire de la part de votre fournisseur d’accès à internet ou d’enregistrements supplémentaires provenant d’une tierce partie, les informations stockées ou extraites à cette seule fin ne peuvent généralement pas être utilisées pour vous identifier.
Marketing
Le stockage ou l’accès technique est nécessaire pour créer des profils d’utilisateurs afin d’envoyer des publicités, ou pour suivre l’utilisateur sur un site web ou sur plusieurs sites web à des fins de marketing similaires.